
έHκ
|
![]() |
||||
| ΐέ π |
ΐ@ΏF40~ ΑοΕΚ ΫΨΰF160~ |
||||
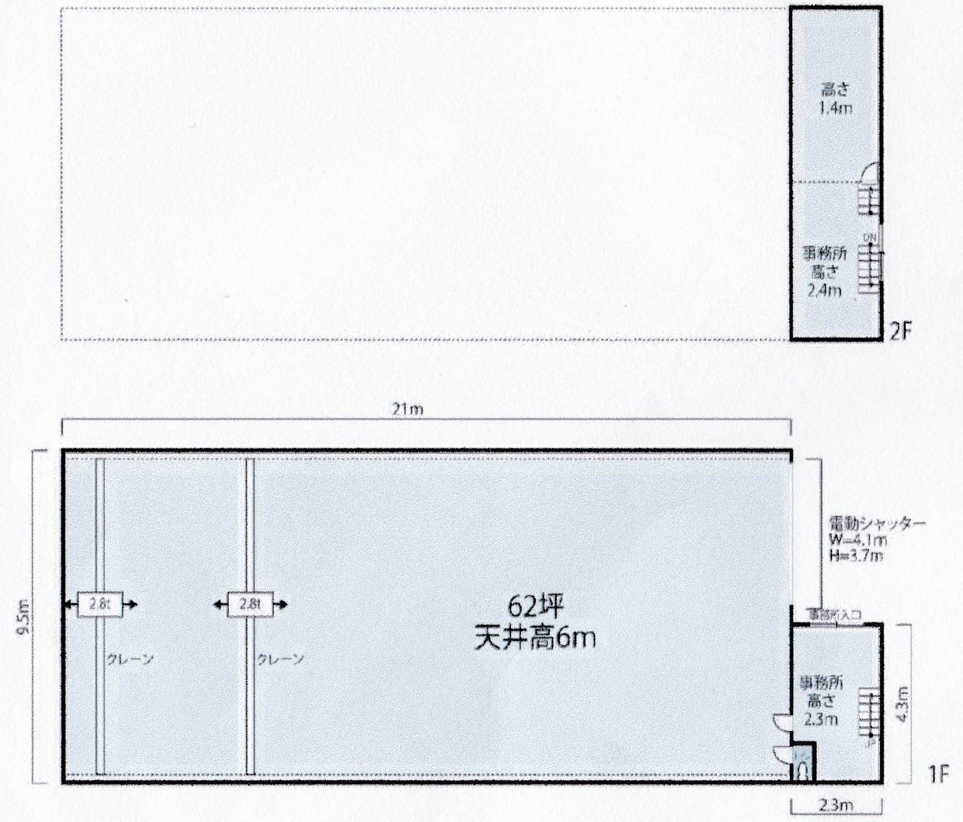
| Z | εγsδc | ||||
| πΚ | nΊSό δcw@kΰ4ͺ |
||||
| \’ ¨ΚΟ |
S’2K 1KFρ62Ψ 2KFρ7Ψ |
||||
| prnζ | HΖnζ | ||||
| Τκ | ³΅ | ||||
| ΉH | μ6ΉH | ||||
| υl |
±Lθ N[i2.8tj2ξ |
||||
| @@@@@@@@@΅ΜΜί@@@@@@@@@@e-maiil: info@sinonome.jp @ |
TELFiOUjUXUT|VPOO FAXFiOUjUXUT|VPOP |
ζψΤl κΚ}ξ |
S a@C |